Save

$775,000

4 Atawhai Lane, Belfast, Christchurch

Alpine Excellence with All Moden Comforts
3 Bedrooms
N/A Lounges
2 Carpark Spots
200 m² Land Footprint

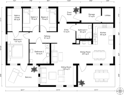
Property Floor Plan

Property Image 6

Property Description

Alpine-inspired modern townhouse offering sun-filled living and a private rear garden — three bedrooms, two carparks and a peaceful neighbourhood setting. Exceptional convenience with a park five minutes’ walk away, a café around the corner and school and supermarket within easy walking distance.

Overview
Set on a tidy 200m² section, this contemporary, plaster-clad townhouse delivers a calm, light-filled living experience in a quiet, community-minded street. Designed and maintained with care over the last decade or so, the home is distinguished by a living room that features big floor-to-ceiling windows, bathing the house in morning light and framing a subtle city view. The rear garden provides an intimate outdoor setting for morning coffee or weekend barbecues, and the property’s two on-site carparks add practical convenience. Presented for sale as a residential private sale at NZD 775,000, this modern home will suit buyers who value a low-maintenance lifestyle close to neighbourhood amenities.

A considered arrival and living flow
Approaching the townhouse, you will appreciate the restrained, modern exterior finished in plaster cladding and the sense of privacy that comes with a compact, well-proportioned section. Entry leads naturally into the principal living area, which is the heart of the home. Here, full-height glazing to one wall brings in abundant natural light and creates a welcoming morning ambience. The living space is bright and cosy — an ideal place to start the day with the sun warming the room, or to relax in the evenings in a calm, sheltered environment. The overall sequence is uncomplicated and easy to live in; the house emphasises light, comfort and outdoor connection rather than ornate detail.

Kitchen and dining flow
The accommodation is arranged to promote an easy daily flow between indoor and outdoor living. From the living area there is direct access to the rear garden and outdoor seating area, enabling effortless transition between inside and out for casual meals, coffee or entertaining. The outdoor area is a genuine asset — a small but well-kept garden with room for container plants, a lawn edge and a dedicated spot for a table and chairs or a barbecue. This space has been a favourite of the current owners for weekend gatherings and quiet mornings, and it offers privacy and a sheltered place to enjoy the sun.

Bedrooms and accommodation
The home offers three bedrooms, each benefitting from natural light. These rooms are well suited to a range of household needs — a family with children, a couple seeking a spare room for guests or a home office, or someone who values the flexibility of multiple bedrooms for lifestyle and work arrangements. The town-house scale means the bedrooms are manageable and comfortable, not oversized but intelligently planned for daily use.

Bathrooms and utility spaces
The property includes the usual bathroom and utility areas required for a modern dwelling. These practical spaces support the home’s comfortable, low-maintenance lifestyle. The interior finishes are consistent with the contemporary style of the house, and the overall presentation reflects thoughtful stewardship by the current owners.

Outdoor living and garden
The rear garden is a standout for this property. It is modest in size yet well designed for everyday outdoor living — a private area for alfresco dining, a sheltered spot for a morning coffee and a green backdrop that softens the modern lines of the home. The garden has been a much-loved extension of the living area and suits those who appreciate outdoor space without the upkeep of a large section. With the section’s 50 percent permeability, the site balances hard landscaping and soft planting in line with contemporary guidelines.

Construction, age and condition
Built within the last 10–20 years, the home presents with modern lines and reliable construction. The plaster cladding gives the exterior a clean, contemporary aesthetic while contributing to low-maintenance upkeep. The age of the property means many of the practical elements have already been attended to and the home sits comfortably within a modern building era, delivering the conveniences expected of a contemporary townhouse.

Parking and practicalities
Two on-site carparks are provided, giving practicality for residents who require vehicle space or for households with more than one driver. Annual property rates are NZD 2,500, and the property currently has insurance in place and can be insured — a further practical reassurance for prospective buyers. The compact section size and sensible layout make ongoing maintenance straightforward.

Location and neighbourhood
One of this property’s strengths is its neighbourhood connection. The immediate street is described as quiet, and the owners highlight a friendly community where neighbours recognise one another and look out for each other. For day-to-day convenience, there is a park only five minutes away on foot — an easy place for walkers, children’s play or weekend exercise. A favourite local café sits just around the corner, offering a pleasant neighbourhood amenity for socialising or a quick coffee. School and supermarket facilities are within walking distance, which adds real practical benefit for families, professionals and anyone who prefers to move around on foot. The combination of nearby green space, local hospitality and everyday services places this property in a sought-after, connected pocket of the suburb.

Lifestyle appeal and potential
This townhouse will appeal to a wide cross-section of buyers. Families will appreciate the three bedrooms, the nearby park and the convenience of a school and supermarket within walking distance. First-home buyers will value the manageable scale, the contemporary presentation and the relatively low upkeep. Downsizers who are not prepared to give up outdoor living will welcome the private rear garden and the practical parking. The property also presents rental and short-stay potential, with indicative Airbnb pricing in the range of NZD 375–400 and a rental bracket noted at NZD 1,000–1,500. These figures are indicative and should be considered alongside market advice, but they do highlight the flexibility this home offers to owner-occupiers and investors alike.

Character and stewardship
The current owners have clearly cared for the property and its connection to the street. The townhouse conveys a feeling of calm and practicality rather than flamboyance — a home that has been lived in thoughtfully and maintained with respect for its modern fabric. The living room’s full-height windows are a defining character feature, bathing interiors in natural light and creating an uplifting daily experience.

A clear proposition
Offered for sale as a residential private sale at NZD 775,000, this modern three-bedroom townhouse combines sun-filled living, private outdoor space and strong local amenity in a quiet, neighbourly setting. The practical aspects — two carparks, modest section size, modern construction and accessible local facilities — pair neatly with the lifestyle attributes of a sunny living area, garden and nearby park and café. For those seeking a low-maintenance modern home in a friendly location with good walkability to everyday services, this property is a considered option.

Next steps
To find out more about this property or to arrange a private viewing, please contact the Bayleys office. We invite you to experience the sunny living area and private garden in person and to explore how this well-presented townhouse could work for your lifestyle or investment plans. Our Bayleys salesperson will be pleased to provide further information and to discuss possibilities tailored to your needs.

Key Features
Listing Category: For Sale
Listing Type: Residential Private Sale
Price: NZD 775,000.00
Property Type: Houses
Land Type: Section
Construction Type: Plaster Cladding
Bedrooms: 3
Land Area: 200m² (more or less)
Annual Property Rates: NZD 2,500.00
Lot Permeability: 50%
Carparks: 2
Property Age: 10–20 years
Property Style: Modern
View Type: City View
Insurance Status: Has insurance / can be insured
Outdoor Features: Garden with outdoor seating area and BBQ spot
Airbnb Price Range (indicative): NZD 375–400
Rental Price Range (indicative): NZD 1,000–1,500
Tagline: Alpine Excellence with All Moden Comforts

Property Details

Property Type:
Houses
Category:
sale
Street Address:
4 Atawhai Lane, Belfast, Christchurch
Suburb:
Belfast
City:
Christchurch
Region:
Canterbury Region
Land Area:
200m²
Floor Area:
N/A
Floor to Land Ratio:
0.00 (Higher density)
Site Coverage:
50.00% of total land
Annual Property Rates:
$2,500
Building Efficiency:
31.00m² per bedroom

Agent Information

Jingyu Test

Company Not Available
Website Not Available

Building Performance Details

Comprehensive property specifications and performance metrics

Energy Systems

Solar Power System

Not_installed

EV Charging

Available

Heating Systems

Central Heating
Pellet Fire

Cooling Systems

N/A

Lighting

Standard

Environmental Impact

Water Efficiency

High

Carbon Footprint

N/A

Sustainable Materials

N/A

Renewable Energy

Full

Construction and Materials

Exterior Cladding

N/A

Interior Cladding

N/A

Construction Type

Plaster Cladding

3D Walkthrough

Airbnb Price Estimator

Estimated Rate
$375 - $400
Based on similar properties in the area

Rental Price Estimator

Estimated Rental Rate
$1,000 - $1,500
Based on similar properties in the area

Insurance Risk Rating

Has Insurance/Can Be Insured

This property is currently insured or eligible for insurance coverage

Based on location, building materials, and natural hazard exposure
Mortgage Calculator

Air Metrics

Air Quality Rating
Excellent
Grade A+
Air Replacement Time
N/A
N/A
Temperature Stability
Stable
High

Based on continuous monitoring and environmental sensors

Utilities & Services

Water Source

N/A

Sewerage System

N/A

Power Supply

N/A

Internet Connection

N/A

Based on council records and property documentation

Solar Exposure Metrics

Daily Sunlight
Less than 4
Less than 4 / day
Seasonal Variation
Low
Low
Solar Potential
Low
Low

Based on annual solar studies
and site analysis

Thermal Performance Metrics

Heat Retention
Low
Low
Thermal Bridging
High
High
Temperature Differential
N/A
N/A

Based on thermal imaging and temperature monitoring

School Zones (10 KM)

Nearby Schools (10 KM)
Loading...
Loading nearby schools...
🏫
No Schools Found
We couldn't find any schools in the nearby area.

Contact Selling Agent Jingyu Test

Thank you! Your message has been sent successfully. The agent will contact you soon.
Error! Something went wrong. Please try again.
1 of 10
Property Image